Property Description
This thoughtfully designed single-story residence combines timeless architecture with modern functionality.
Structure: Concrete block home with reinforced steel, engineered roof, and 30-year shingles
Exterior: Stucco finish, paver driveway allowance, landscaping included
Windows/Doors: Impact-resistant windows and doors throughout
Energy Efficiency: High insulation (R-20), 16 SEER AC, efficient water heater
Plumbing: Modern fixtures, walk-in showers, freestanding tub, laundry sink
Electrical: LED lighting, USB outlets, prewired for TV, pool, and outdoor kitchen
Interior Finishes: Quartz countertops, 42” soft-close cabinets, tile/wood flooring
Appliances: Included allowance (kitchen appliances)
Extras: Hurricane shutters, irrigation system, 2-year warranty
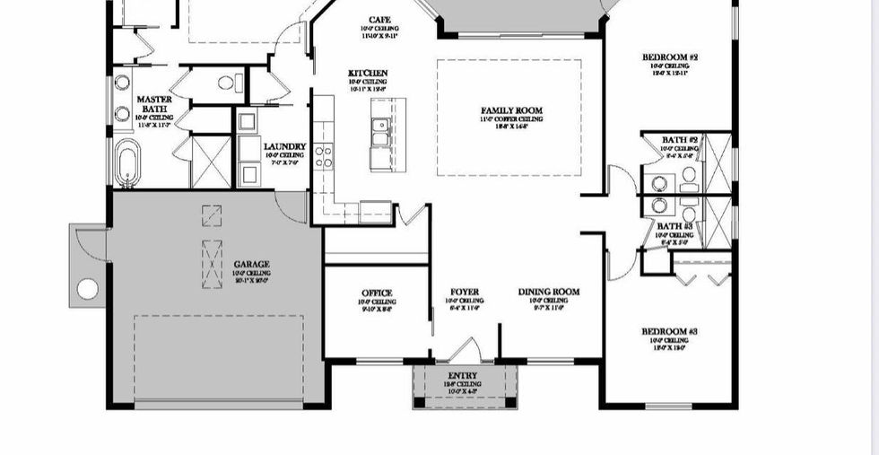
2,293 sq ft living / 3,555 total
3 bed / 2 bath / 3-car garage
Includes office/game room + large family room
The front elevation showcases a balanced, elegant façade featuring a welcoming covered entry framed by architectural columns and layered rooflines that add depth and character. A spacious two-car garage provides ample room for vehicles and storage, while the symmetrical window placement enhances natural light and curb appeal.
Inside, the layout is designed for both comfort and practicality. The rear elevation highlights generous living space with large sliding glass doors that open to the backyard — perfect for indoor-outdoor living, entertaining, or future patio and pool plans. The split-bedroom style configuration (implied by the layout) offers privacy and flow ideal for families or guests.
Contact Agent
Ashley Amerson
(561) 719-7574
Property Details
Property Type
Single Family Home
Bedrooms
2
Bathrooms
2
Size
2,293 sqft
Floors
1



